BYTOVÝ DŮM "SMETANOVA"
Moderní bydlení v souladu s přírodou
Představujeme vám jedinečný bytový dům v klidné ulici centra Jablonce nad Nisou, který spojuje moderní architekturu a udržitelný způsob výstavby. Tento ekologický dům z dřevěných CLT panelů je navržen s důrazem na kvalitu, energetickou úspornost a zdravé bydlení.
Komorní atmosféra, soukromí a klid
Bytový dům má 20 bytových jednotek různých velikostí, nejde o anonymní komplex nýbrž o komorní a přátelské prostředí. Každý byt je promyšlen do posledního detailu – od kvalitních materiálů po funkční dispozice, které podporují pohodlný každodenní život. Kontrukční systém je navržen z CLT panelů, které se ve světe používají pro výstavbu několikapatrových moderních budov. Myšleno je i na úsporu energií, bytový dům ponese štítek nejvyšší energetické náročnosti třídy A.
Soukromá zahrada pro obyvatele
K domu náleží velká oplocená zahrada, určená výhradně pro jeho rezidenty. Prostor bude koncipován jako rodinné zázemí pro odpočinek i setkávání – nechybí místo pro grilování, posezení a dětské dovádění. Zeleň, dřevo a přírodní materiály doplňují architektonický charakter celé stavby.
Skvělá poloha – jen pár minut od přehrady
Bytový dům se nachází v oblíbené lokalitě pouhých 5 minut chůze od jablonecké přehrady, která nabízí nejen sportovní a rekreační vyžití, ale i příjemné procházky v zeleni. V docházkové vzdálenosti se nachází veškerá občanská vybavenost – školy, školky, sportovní hala, krytý bazén, obchody i dopravní spojení.
https://mapy.com/s/kajagazeru
Termín realizace
projektová činnost 2025 - zahájení výstavby 2026 - předpokládáné dokončení stavby 2028 - předání bytu 2028
Byty a předběžné ceny
Objekt bude disponovat 6 byty dispozice 1+KK, 6 byty dispozice 2+KK, 6 byty dispozice 3+KK, 2 byty dispozice 4+KK, 10 krytými garážovými stáními a venkovním stáním. V suterénu stavby bude ke každému bytu vyhrazeno dostatek úložných prostor. Každý byt má v rámci své ceny zajištěno jedno stání pro automobil v oplocené zahradě. Krytá stání umístěna v suterénu objektu budou zpoplatněna, cena za 1 stání je 450 000 Kč vč. DPH, přednostní prodej bude vyhrazen pro byty dispozice 4+KK a 3+KK.
číslo bytové jednotky |
podlaží |
dispozice |
celková plocha (m2) |
balkón/ terasy (m2) |
půdorys |
předběžná cena vč. DPH |
stav |
1.01 |
1 |
1+KK |
43,3 |
4,6 |
náhled |
3 989 000,00 Kč |
VOLNÝ |
1.02 |
1 |
1+KK |
42,8 |
4,1 |
náhled |
3 989 000,00 Kč |
VOLNÝ |
1.03 |
1 |
3+KK |
113 |
31,2 |
náhled |
8 289 000,00 Kč |
VOLNÝ |
1.04 |
1 |
2+KK |
84,4 |
13,8 |
náhled |
6 989 000,00 Kč |
VOLNÝ |
1.05 |
1 |
3+KK |
123,8 |
34,3 |
náhled |
8 989 000,00 Kč |
PŘEDBĚŽNĚ REZERVOVÁNO |
1.06 |
1 |
2+KK |
67,4 |
7,6 |
náhled |
5 889 000,00 Kč |
VOLNÝ |
2.01 |
2 |
1+KK |
43,3 |
4,6 |
náhled |
3 989 000,00 Kč |
VOLNÝ |
2.02 |
2 |
1+KK |
42,8 |
4,1 |
náhled |
3 989 000,00 Kč |
VOLNÝ |
2.03 |
2 |
3+KK |
113 |
31,2 |
náhled |
8 289 000,00 Kč |
VOLNÝ |
2.04 |
2 |
2+KK |
84,4 |
13,8 |
náhled |
7 089 000,00 Kč |
VOLNÝ |
2.05 |
2 |
3+KK |
123,8 |
34,3 |
náhled |
8 989 000,00 Kč |
PŘEDBĚŽNĚ REZERVOVÁNO |
2.06 |
2 |
2+KK |
67,4 |
7,6 |
náhled |
5 889 000,00 Kč |
PŘEDBĚŽNĚ REZERVOVÁNO |
3.01 |
3 |
1+KK |
43,3 |
4,6 |
náhled |
3 989 000,00 Kč |
PŘEDBĚŽNĚ REZERVOVÁNO |
3.02 |
3 |
1+KK |
42,8 |
4,1 |
náhled |
3 989 000,00 Kč |
PŘEDBĚŽNĚ REZERVOVÁNO |
3.03 |
3 |
3+KK |
113 |
31,2 |
náhled |
8 289 000,00 Kč |
PŘEDBĚŽNĚ REZERVOVÁNO |
3.04 |
3 |
2+KK |
84,4 |
13,8 |
náhled |
7 089 000,00 Kč |
VOLNÝ |
3.05 |
3 |
3+KK |
123,8 |
34,3 |
náhled |
8 989 000,00 Kč |
PŘEDBĚŽNĚ REZERVOVÁNO |
3.06 |
3 |
2+KK |
67,4 |
7,6 |
náhled |
5 889 000,00 Kč |
VOLNÝ |
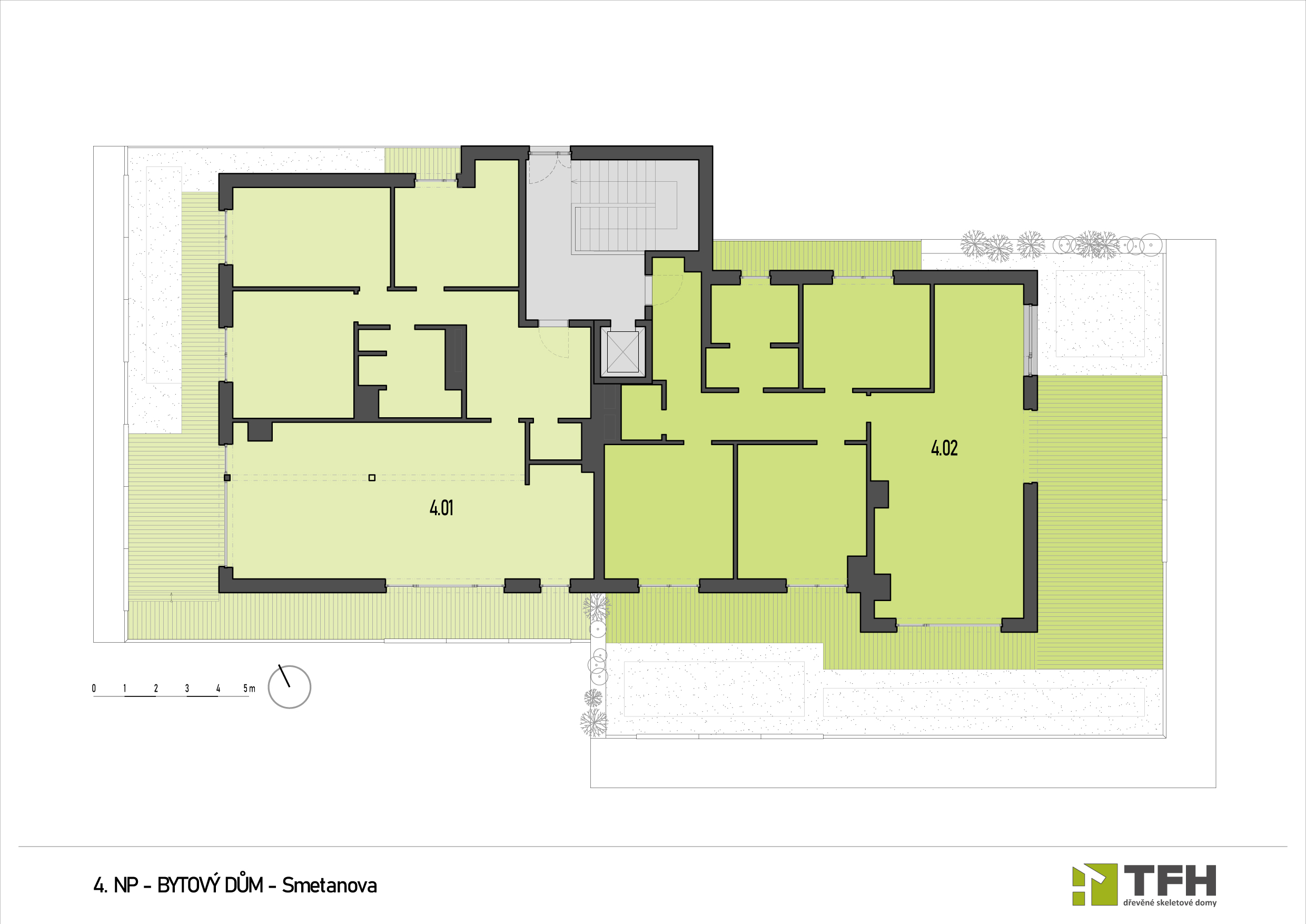
4.01 |
4 |
4+KK |
204,3 |
73 |
náhled |
15 490 000,00 Kč |
VOLNÝ |
4.02 |
4 |
4+KK |
253,1 |
128,6 |
náhled |
15 990 000,00 Kč |
VOLNÝ |
V případě zájmu nás kontaktujte na email prajzler.milan@tfh.cz nebo telefonní číslo +420 734 441 877.