CHATA NEBO RODINNÝ DŮM NA NOVÉ VSI NAD NISOU
 
Pro ty, kdo hledají klid a osobní prostor
 
Další developerský projekt od TFH ve výstavbě. Předpokládaný termín dokončení je přelom jara/ léta 2026. Dům i terénní úpravy budou plně dokončeny, vyřešena příjezdová cesta, osázená zeleň. Stačí se jen nastěhovat a začít dům i zahradu plnohodnotně užívat. 
 
Ekologie, pohodlí a jedinečnost dřevostavby od TFH
 
Tento projekt spojuje moderní architekturu, udržitelný způsob výstavby a přirozené soužití s okolní přírodou. Je navržen s důrazem na kvalitu, úspornost a zdravé bydlení – dřevěný konstrukční sytém zajišťuje příjemné vnitřní klima a klade velký důraz na nízkou energetickou náročnost. 
 
Kousek do přírody i ke kultuře
 
Dům je zasazen do kopcovitého prostředí černostudničního hřebene v příměstské rekreační obci Nová Ves nad Nisou.  Pozemek se nachází na klidném místě. Od vedlejší komunikace je odcloněn remízkem a příjezdovou cestou. V sousedství stojí pěkné, udržované stavby. Na vedlejší pozemek plánujeme časem postavit druhý objekt, který je patrný již na studii. V tuto chvíli se však nerealizuje.
 
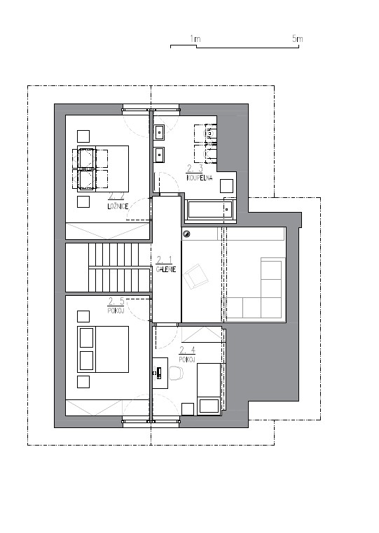
Dispozice
 
Dispozice domu je 4+kk. V přízemí se nachází zádveří/ technická místnost/ koupelna/ obývací část s kuchyňským koutem a spíží. V obytném podkroví poté tři pokoje a koupelna.
 
CENA
 
16 408 000 Kč vč. 12% DPH
(14 650 000 Kč bez DPH) 
 
 
 
 
 
Architekt: Ateliér TFH
 
V případě zájmu nás můžete kontaktovat na email či telefonní číslo +420 734 441 877.

STAVBA JE REALIZOVÁNA JAKO
DEVELOPERSKÝ PROJEKT OD TFH.